Red WiFi para Hotel Ñikén que invierte esfuerzos en mejorar cada día sus servicios. De esta manera, entienden que el servicio de internet Wi-Fi es fundamental y es el motivo de realizar una reserva o no hacerla (o por lo menos un factor muy importante en la decisión de compra).

Hotel Niken Necochea

La empresa decide reforzar con tecnología Ruijie por sugerencia tecnica de WiFiLink. La instalación avanza escaladamente y en esta oportunidad se realizó la cobertura en planta baja y primer piso.

El Hotel Ñikén cuenta con una red cableada en categoria 5, partiendo de un rack de equipos de red, switch, modem Fibertel (Proveedor de datos). Todo esto inicia un despliegue de actualizacion del cableado estructurado UTP hacia todos los pisos en CAT6.

Previamente la red en su tramo general estaba sufriendo reiterados conflictos. Por lo que nuestro equipo técnico, comenzó a realizar un estudio de caso al detalle de la instalación de red completa realizada por otro equipo técnico en el pasado.
Este inicio de actividades, fue el pie para reestructurar toda la red escaladamente y se dio prioridad a resolver la falta de conectividad en los sectores mas complejos.

El Hotel Ñikén es grande, por lo tanto se necesita una estrategia importante con tecnología adecuada. Que no falle, que no sufra cortes, que fluyan datos reales y no con disminución de señal por baja calidad de hardware desactualizado.

El Hotel contaba con AP TP-LINK. Tecnología no capacitada o diseñada para estas exigencias. 
En esta proxima etapa se fueron actualizando por tecnologia Ruijie iniciando por planta baja, piso 1, 2, 3 y 4 en los sectores mas críticos con falta de señal, como en las habitaciones.

Primeros pasos para la solución de problemas:

1 -Instalar rack principal de datos planta baja y organización de cableado existente.

2- Instalar 4 Rack para derivadores. ( 1 por cada piso ).

3 – Instalación de Cableado estructurado hacia bocas AP in wall ó AP cielo raso.

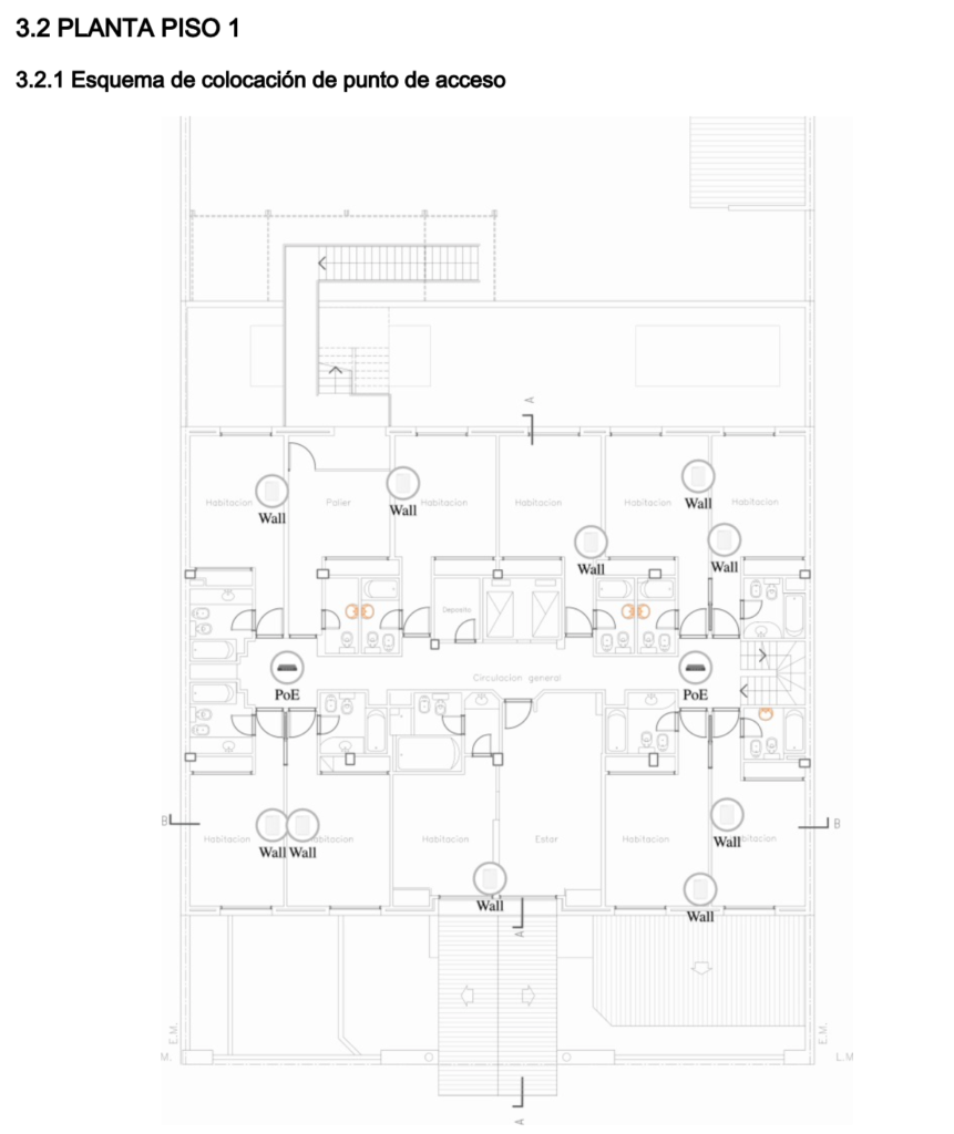
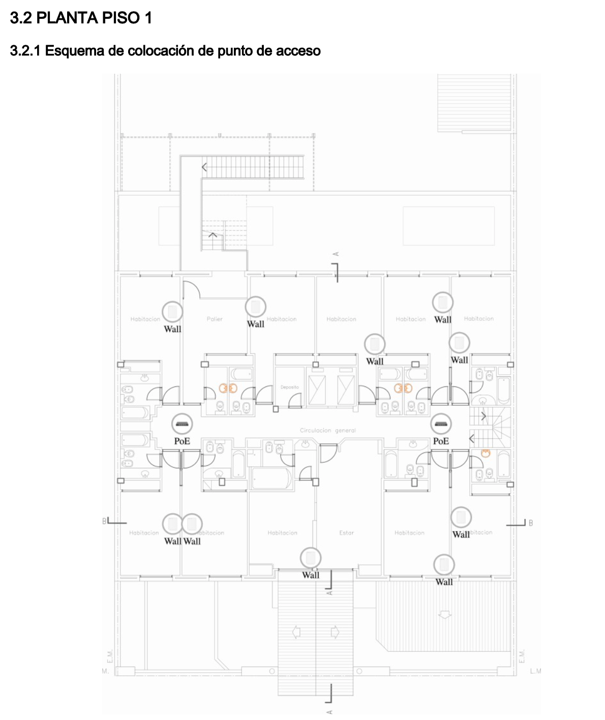
4- Instalación de 34 bocas de AP in wall.

5- Instalación de 5 AP techo.

6- Cableado general a cada piso.

7- Rotulado e identificación de bocas y cables.

8- Configuración y testeo del sistema.

tecnologia Ruijie wifi

OBJETIVOS:
Personal técnico realizó una inspección mediante planos para resolver la mejor opción de instalación y selección de tecnología: 

  1. Realizar una visita técnica al Hotel para planificación estratégica.
  2. Instalar una red estructural cableada CAT6.
  3. Instalar tecnología wifi según plan de obra.
  4. Configurar y programar tecnología.

PLANES FUTUROS
Se planificara un crecimiento sostenido de la red WiFi y se está instalando Rujie Networks para escalar la red diseñada para otros pisos del establecimiento y continuaremos usando el controlador Ruijie para administración centralizada del sitio.

Hotel Niken
Screen Shot 2024 05 14 at 22.33.30
Internet hotel ruijie necochea Niken
Internet wifi 6
Ruijie wifi 6

Deja una respuesta

Tu dirección de correo electrónico no será publicada. Los campos obligatorios están marcados con *

  • Rating