
El problema en el Hotel Ñikén de Necochea, era la falta de conectividad Wi-Fi de los huéspedes en todo el Hotel. A pesar de tener una red Wi-Fi instalada no era posible garantizar un servicio de internet mediante red inalámbrica Wi-Fi para sus huéspedes, por una mala configuración y tecnología inadecuada para el sector de hoteleria.
La gerencia del hotel fue mal asesorada en oportunidades anteriores y nunca se pudo dar con la solucion tecnologica que cumpla con los requerimientos para un hotel de 4 estrellas. De esta manera, ante cientos de quejas por parte de los clientes y durante muchas temporadas, sus encargados como el personal de servicio, trataban de resolver estos inconvenientes reiniciando los equipos que se ecnontraban instalados en cada piso.
El problema de red wifi evidente:
- 1- Un mal diseño o planteo de red estructurada de datos y planificacion estretegica de señal.
- 2- Tecnología wifi de poca calidad para hotelería. Equipos hogareños.
- 3- Cableado de poca calidad que limitaba la señal contratada.
- 4- La red antigua carecia de tecnologia de gestion de red, por ejemplo: Router Ruijie Cloud. Toda la red era gestionado por dos Modem Router del proveedor del servicio de internet Personal TELECOM que intentaba administrar en simultaneo todas las conexiones de los clientes. Estos Routers estaban repartidos entre planta baja y el piso 2 del hotel para dar mas cobertura. Estos no son equipos preparados para este uso.
El conjunto de caracteristicas de red mensionadas anteriormente hacia que la misma colapsara haciendo imposible su uso mediante Wi-Fi. Y los Ruter Hogareños de marca Tp-link instalados en los pisos, se colgaban por congelamiento de software, obligando al personal del hotel a reiniciarlos continuamente.
Por lo tanto, cientos de clientes del hotel insatisfechos por no poder conectarse a internet mediante Wi-Fi, un servicio que deberia estar garantizado.
La empresa Hotel Ñiken de Necochea, intentó solucionar este problema reiteradas veces pero sin resultado positivo. Una de las tantas estrategias, fue la de contratar dos planes de internet de 1 GB de un mismo proveedor y a pesar de esto, la red WiFi era ineficiente. Esto es por un mal asesoramiento tecnico, generando gastos innecesarios durante muchos años.
Comentarios negativos en Booking.com en relación al internet Wi-Fi




Tecnología en antigua red WiFi en Hotel Ñikén


La Solución : WiFiLink
El Hotel Ñikén reúne esfuerzos en mejorar sus servicios. De esta manera, deciden poner fin a los problemas de su red de internet WiFi, entendiendo que este servicio es fundamental y su objetivo es cambiar la mala experiencia de sus clientes y los comentarios del servicio en redes sociales como en el mismo hotel.
La empresa decide realizar una busqueda mediante Google para encontrar asesoramiento y dieron con nuestro soporte tecnico WiFiLink. Y esto fue un inicio para avanzar en esta sociedad para la solucion del problema de su red WiFi.
WiFiLink inicia Planificacion y obra.
Primeros pasos para la solución de problemas:
1 -Instalar rack principal de datos planta baja y organización de cableado existente.
2- Instalar 4 Rack para derivadores o switch gigalan. ( 1 por cada piso ).
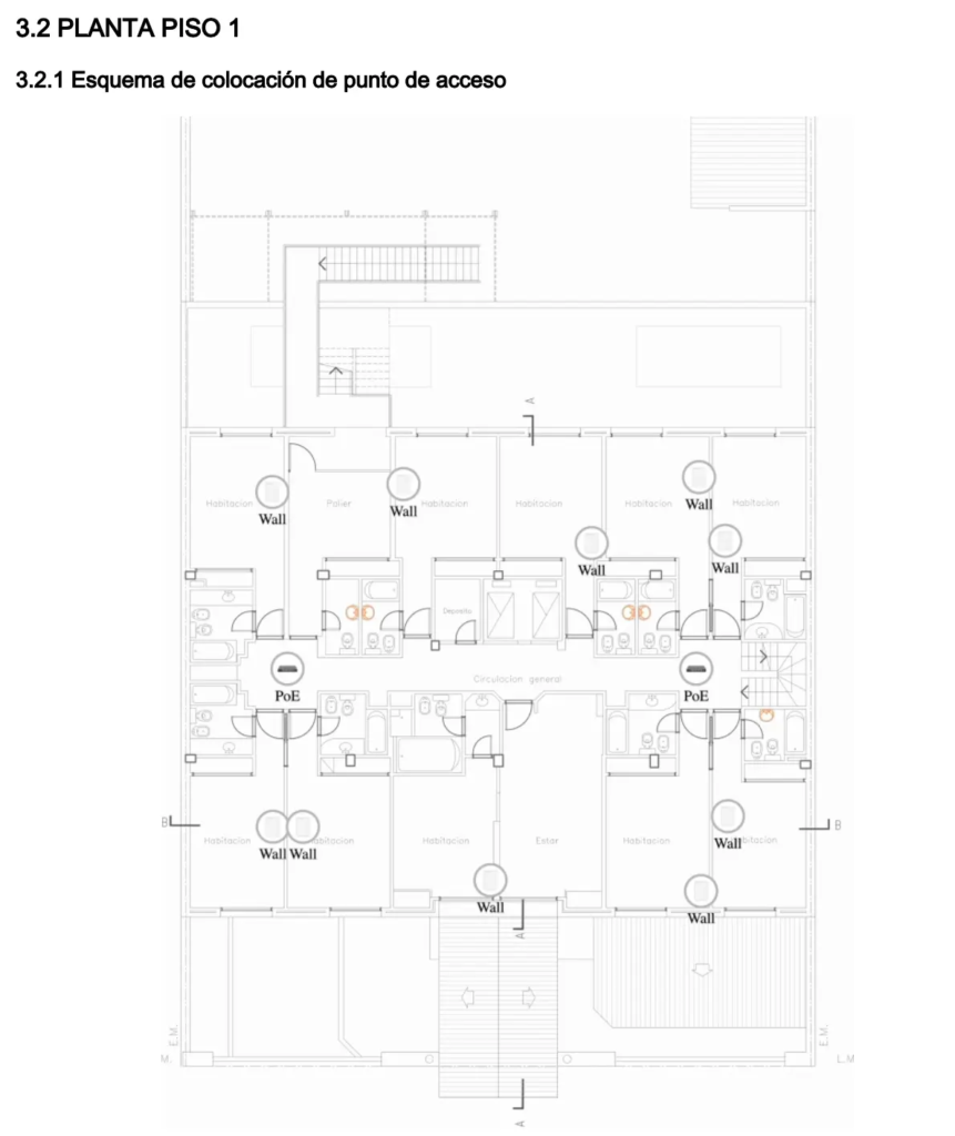
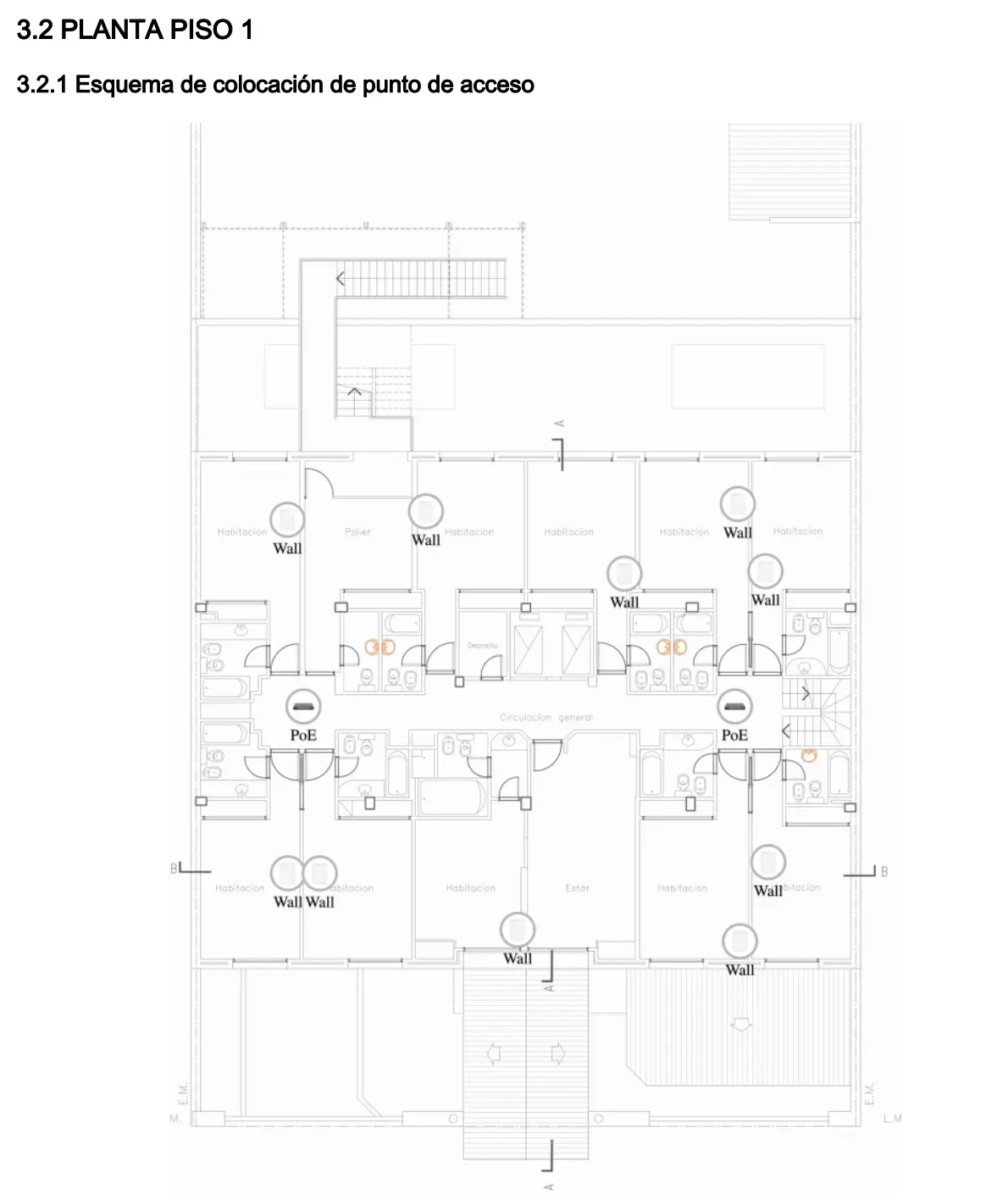
3 – Instalación de Cableado estructurado hacia bocas AP in wall ó AP cielo raso.
4- Instalación de 34 bocas de AP in wall.
5- Instalación de 5 AP techo.
6- Cableado Cat gigalan general a cada piso.
7- Rotulado e identificación de bocas y cables.
8- Configuración y testeo del sistema.
OBJETIVOS:
Personal técnico realizó una inspección mediante planos para resolver la mejor opción de instalación y selección de tecnología:
- Realizar una visita técnica al Hotel para planificación estratégica.
- Instalar una red estructural cableada CAT6.
- Instalar tecnología wifi según plan de obra.
- Configurar y programar tecnología.
PLAN ESTRATEGICO
Se planificara un crecimiento sostenido de la red WiFi y se está instalando Rujie Networks para escalar la red diseñada para otros pisos del establecimiento y continuaremos usando el controlador Ruijie para administración centralizada del sitio.





WiFiLink Redefine la red Wi Fi.
Internet Wi Fi de 500 mb en todo el hotel




AP IN WALL RUIJIE




